郑州建云装饰材料有限公司 郑州建云装饰材料有限公司
五金
联系我们

郑州建云装饰材料有限公司

联系人:邢总

联系电话:15237126605

公司地址:郑州市中牟县白沙镇商都路与电厂路向北200米

基础五金

home当前位置>主页>基础五金

重型滑轨 楼梯底柜

重型滑轨 楼梯底柜

相关搜索:重型滑轨 楼梯底柜 发布时间:2025-08-05

郑州建云装饰材料有限公司

电话:15237126605

联系人:邢总

详情介绍

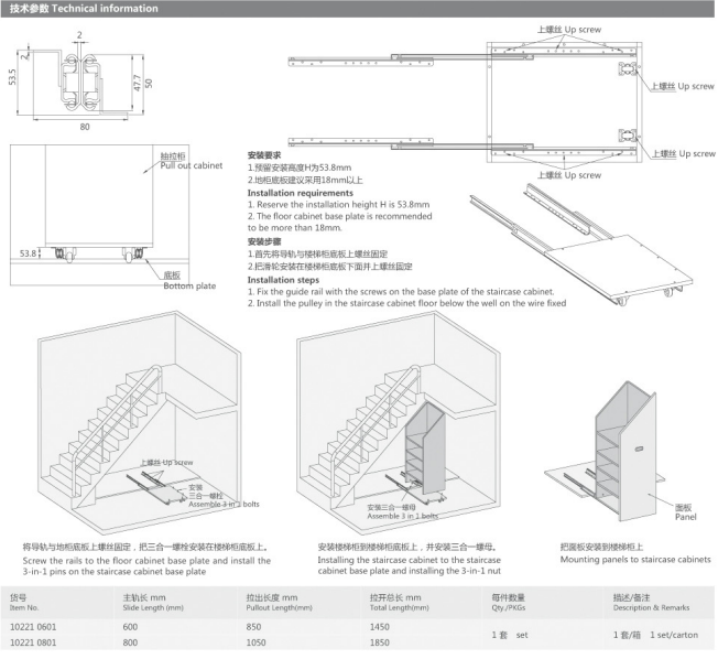
image

郑州建云装饰材料有限公司© 版权所有 备案号: 豫ICP备20000673号  营业执照  技术支持: 网站地图 XML
  关于极限词、绝对性用词与功能性用词等广告法禁用词失效和免责声明